不動産≫建物≫
【中古戸建】清春1期8号地
価格:1,500万円管理費:70,100円/年
静かな森の別荘地に佇む一戸建
こちらは県道17号・七里岩ラインの南側に位置する森の中にある別荘だ。近隣の別荘は余裕をもって建てられており、程よい距離感が保たれている。 室内はたっぷりと採光があり、解放感のある明るいつくり。築年数は25年を超えるが、玄関ドアの交換やキッチンのリフォーム等、適宜手直ししている為そのまま利用することが出来る。
| 物件詳細 | |||
|---|---|---|---|
| 所 在 | 小淵沢町松向 | ||
| 交 通 | 中央道 小淵沢IC/JR中央線 長坂駅 | ||
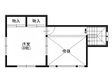
| 建 物 | |||
| 構造・規模 | 木造スレート葺2階建 | ||
| 面 積 | 1F:57.68㎡ 2F:23.18㎡ 計:80.86㎡ | ||
| 築年月 | 平成8年8月 | 駐車場 | 1台 |
| 設 備 | 東京電力 IH 上水道 | ||
| 浄化槽 | |||
| 土 地 | |||
| 面 積 | 279㎡(84.40坪) | 私道持分 | あり |
| 権 利 | 所有権 | 地 目 | 山林 |
| 接 道 | 南側私道に約17m接面 | ||
| 備 考 | |||
| 都市計画 | 区域外 | 用途地域 | 指定なし |
| 他の法令上の制限 | 北杜市景観条例・まちづくり条例 | ||
| 建ぺい率 | 20% | 容積率 | 40% |
| 現 況 | 利用中 | 引渡日 | 応相談 |
| 管 理 | 土地管理:34,300円/年、建物管理:35,800円/年 | ||
| その他 | 分譲地規約有 | ||
| 手数料の他、登記費用・印紙代別途 | |||
| 傾斜地 標高約800m | |||
| 契約不適合責任免責物件 | |||
| 建物現状調査の斡旋あり | |||
| 取引形態 | 一般 | 手数料 | 561,000円 |
| 情報公開日 | 2022/10/25 | 更新日 | |
※表示内容と異なる場合は現況を優先します。
※条例の内容につきましては北杜市HPよりご確認下さい。リンクはコチラ▶
※ご案内をご希望の方は事前にご予約下さい。 (お問い合わせフォーム▶ ・☎0551-36-6566 ・✉kanri@greenvilla.jp)













