不動産≫建物≫
【中古戸建】棒道下2期7号地
価格:3,980万円 管理費:84,900円/年
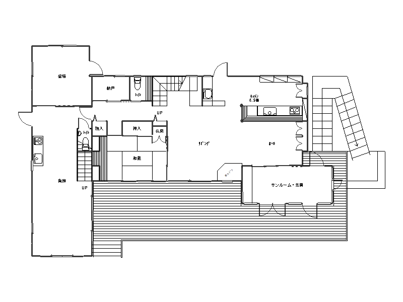
陶房・窯あり!ものづくりにお勧め
眺望が良く、南アルプスを望む家。1階には陶房と窯、2階にはギャラリーがあり、ものづくりやワークショップに最適。サンルーム兼用の玄関ホールや薪ストーブ、開放感ある窓と吹き抜けが魅力。レンガ敷スペースのある庭ではガーデンパーティーも楽しめる。収納も広く、定住にもおすすめ。 小淵沢ICから約2.6km(車で5分)、小淵沢駅から約4.4kmと好立地で人気の棒道・大東豊エリア。
| 物件詳細 | |||
|---|---|---|---|
| 所 在 | 北杜市小淵沢町字棒道下 | ||
| 交 通 | 中央道 小淵沢IC/JR中央線 小淵沢駅 | ||
| 建 物 | |||
| 構造・規模 | 木造スレート葺2階建 | ||
| 面 積 | 1F:約138㎡ 2F:約89㎡ 計:約227㎡(未登記) | ||
| 築年月 | 平成11年2月 | 駐車場 | 4台 |
| 設 備 | 東京電力 個別プロパンガス ユニットバス | ||
| 上水道 浄化槽 薪ストーブ | |||
| 土 地 | |||
| 面 積 | 686㎡(207.51坪) | 私道持分 | なし |
| 権 利 | 所有権 | 地 目 | 原野 |
| 接 道 | 北側公道に約22m、東側公道に約28m接面 | ||
| 備 考 | |||
| 都市計画 | 区域外 | 用途地域 | 指定なし |
| 他の法令上の制限 | 北杜市景観条例・まちづくり条例 | ||
| 建ぺい率 | 20% | 容積率 | 40% |
| 現 況 | 居住中 | 引渡日 | 応相談 |
| 管 理 | 土地管理:49,100円/年 建物管理:35,800円/年 | ||
| その他 | 分譲地規約有 | ||
| 建物現状調査の斡旋あり | |||
| 手数料の他、登記費用・印紙代別途 | |||
| 契約不適合責任免責 | |||
| 建物未登記(登記予定あり)、テラスに傷みあり | |||
| 取引形態 | 一般媒介 | 手数料 | 1,379,400円 |
| 情報公開日 | 2025.5.7 | 更新日 | |
※表示内容と異なる場合は現況を優先します。
※条例の内容につきましては北杜市HPよりご確認下さい。リンクはコチラ▶
※ご案内をご希望の方は事前にご予約下さい。 (お問い合わせフォーム▶ ・☎0551-36-6566 ・✉kanri@greenvilla.jp)


















